More Info

Any gaps in the list of drawings will be marked as either MISSING or DELETED. Missing drawings are simply ones I don't have, whereas deleted drawings were removed from the set by the drafting company or contractor. This latter group means that a drawing might exist, but was not part of the as-built set of final plans, or was later modified.

The Missile Silo blueprints are further broken down into the following sub-groups as shown in the following table and can be directly selected below to jump to those groups of drawings.

There are currently 56 drawings in the Missile Silo section.

NOTE: Drawing descriptions may be truncated and/or abbreviated to remove redundant text and maintain brevity in limited cell space.


Drawing Types

The following table provides quick selection of the types of drawings in the Missile Silo section. You can choose a category below, or scroll down to see everything in order.

At this time, there are only drawings available in the Architechtural, Composite, Mechanical, Plumbing and Structural sub-categores for the Missile Silo category drawings. I hope more will be located and added in the future.

Sub-group Description
A Architectural
C Civil (NONE AVAILABLE)
CP Composite
D Details (NONE AVAILABLE)
E Electrical (NONE AVAILABLE)
M Mechanical
P Plumbing
S Structural

Missile Silo - Architechtural drawings (6)

Drawing Number Description
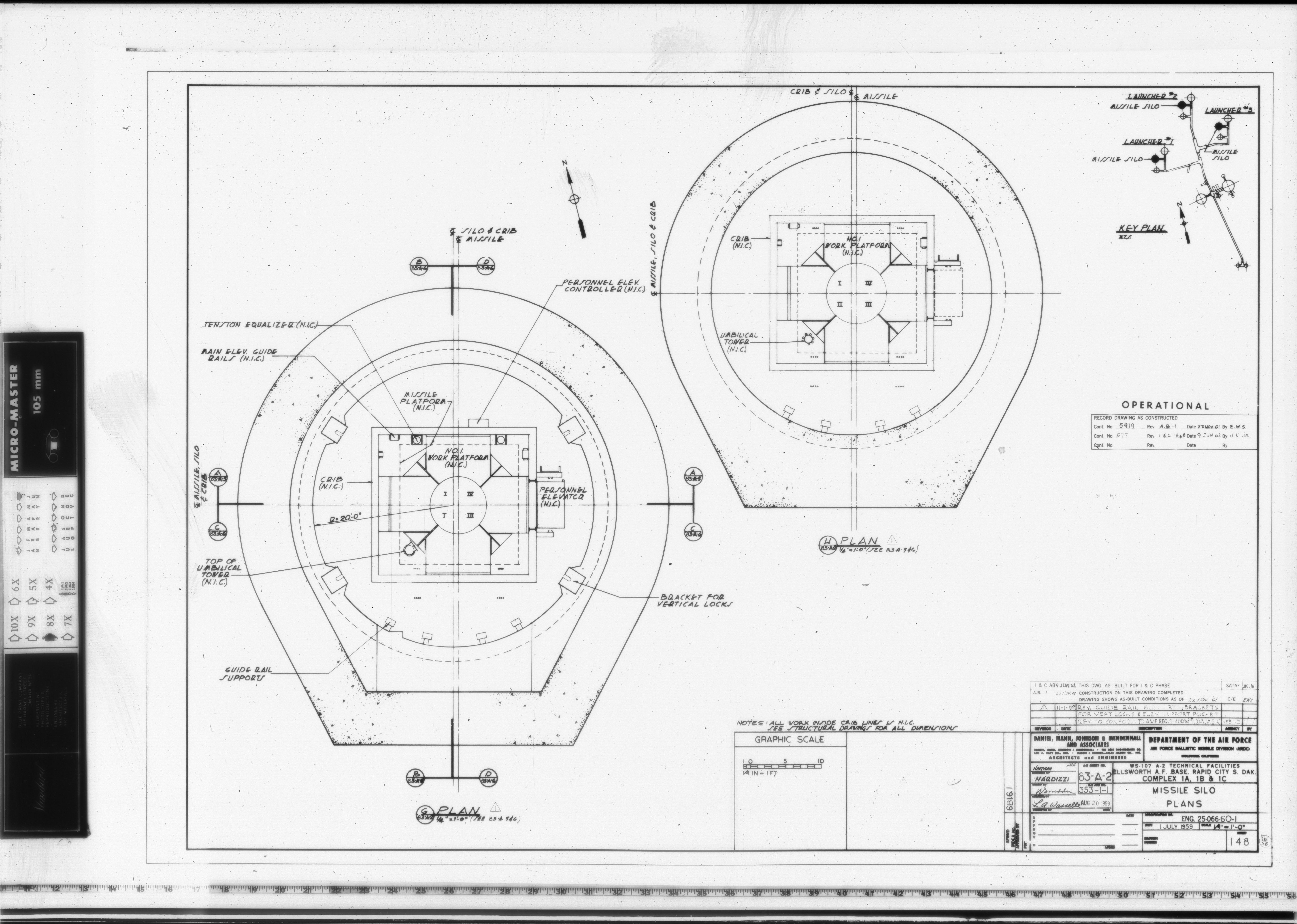
83-A-1 MISSILE SILO PLANS
83-A-2 MISSILE SILO PLANS
83-A-3 MISSILE SILO PLANS
83-A-4 MISSILE SILO PLANS
83-A-5 MISSILE SILO PLANS & SECTION
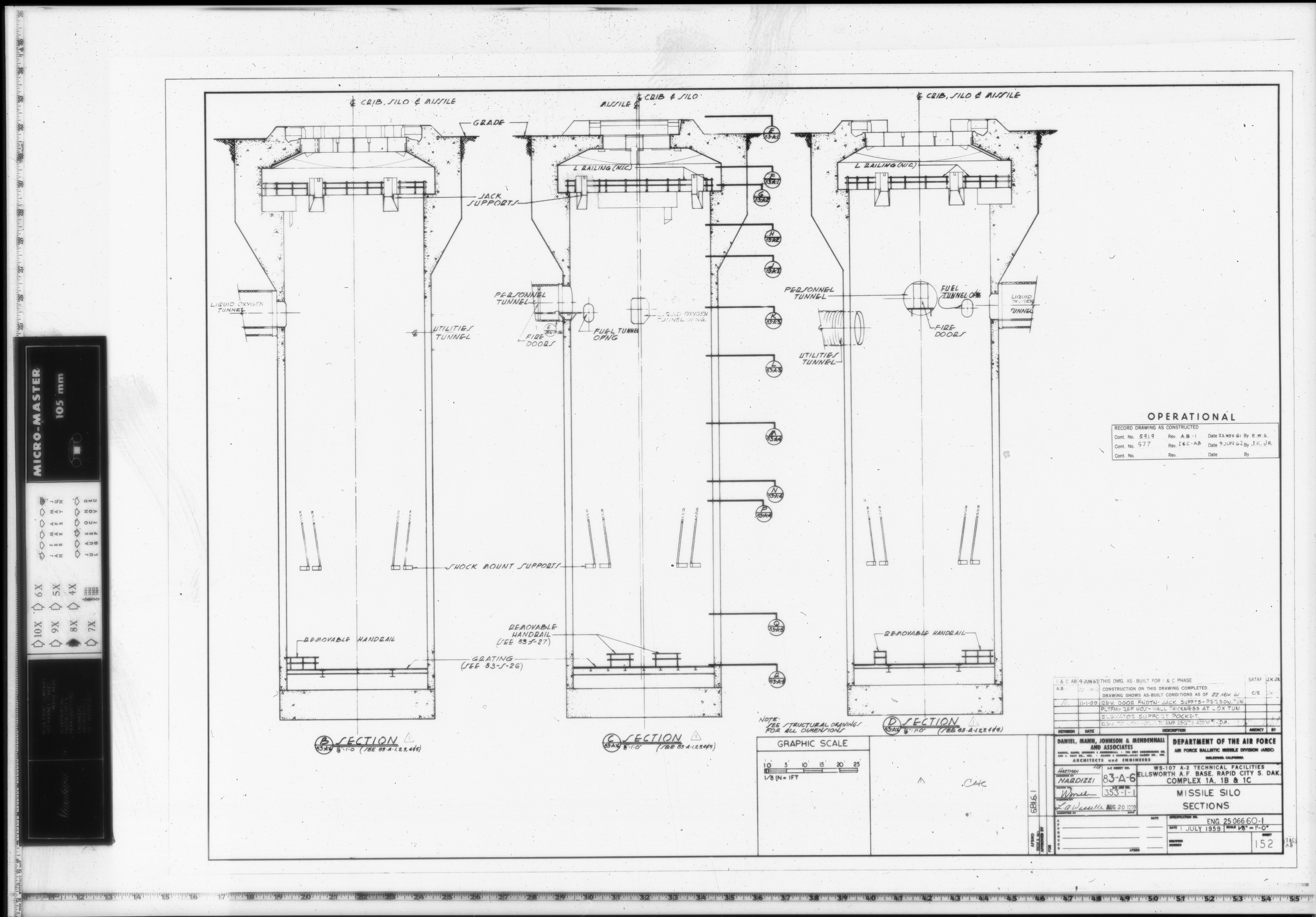
83-A-6 MISSILE SILO SECTIONS

Missile Silo - Composite drawings (11)

Drawing Number Description
83-CP-1 ELEVATION - A, QUADRANTS I & IV ELEV 0'-0" TO -63'-0"
83-CP-2 ELEVATION - B, QUADRANTS I & IV ELEV -63'-0" TO -116'-0"
83-CP-3 ELEVATION - C, QUADRANTS II & III ELEV 0'-0" TO BOTTOM OF SILO
83-CP-4 ELEVATION - D, QUADRANTS I & IV ELEV 0'-0" TO -63'-0"
83-CP-5 ELEVATION - E, QUADRANTS II & III ELEV -63'-0" TO -116'-0"
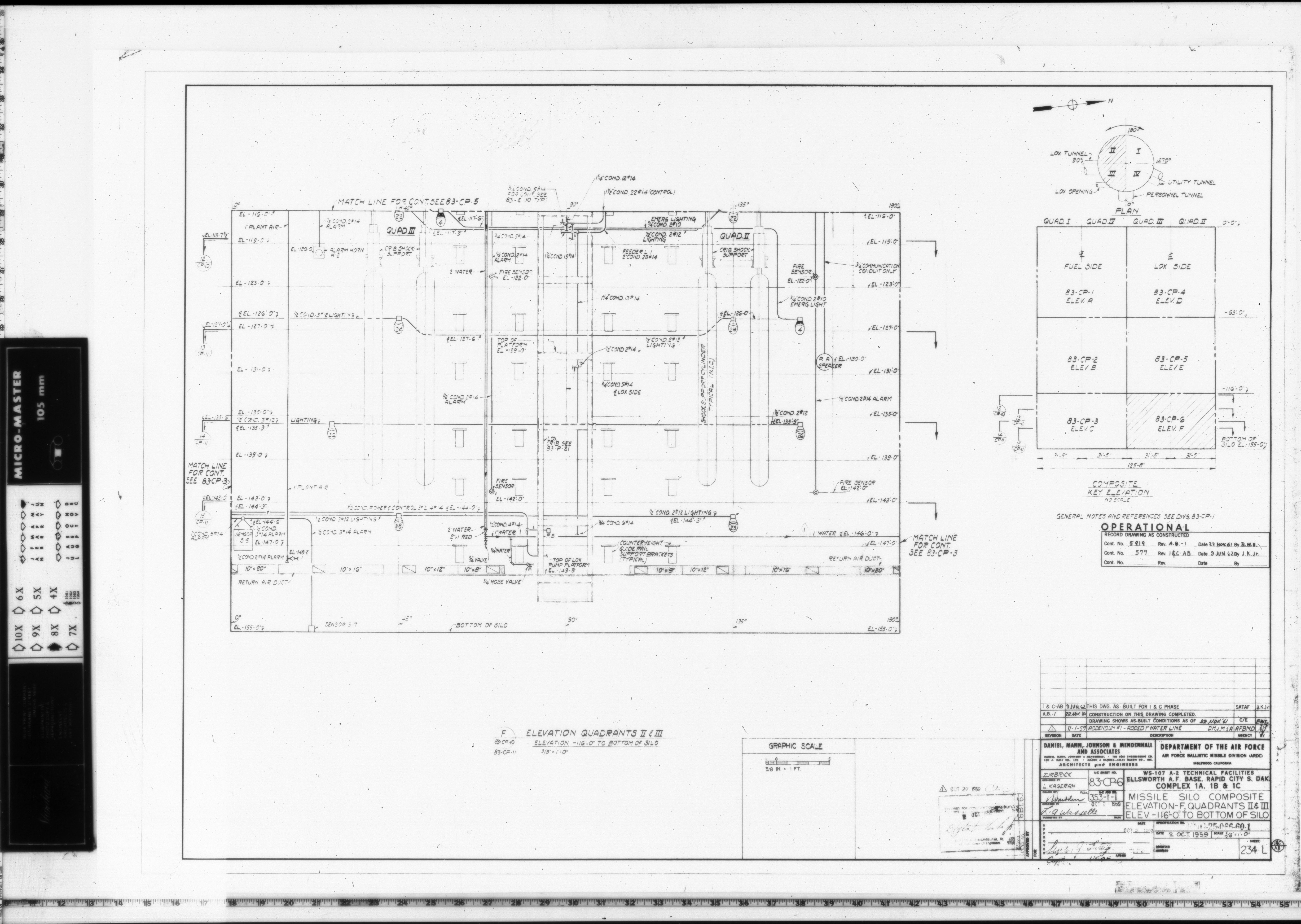
83-CP-6 ELEVATION - F, QUADRANTS II & III ELEV -116'-0" TO BOTTOM OF SILO
83-CP-7 MISSILE SILO COMPOSITE PLANS 1, 2 & 3
83-CP-8 MISSILE SILO COMPOSITE PLANS 4, 5 & 6
83-CP-9 MISSILE SILO COMPOSITE PLANS 7, 8 & 9
83-CP-10 MISSILE SILO COMPOSITE PLANS 10, 11 & 12
83-CP-11 MISSILE SILO COMPOSITE PLANS 13, 14 & 15

Missile Silo - Mechanical drawings (7)

Drawing Number Description
83-M-1 AIR CONDITIONING UPPER DUCT PLANS
83-M-2 AIR CONDITIONING LOWER DUCT PLANS
83-M-3 AIR CONDITIONING DETAILS & SCHEDULE
83-M-3.1 AIR CONDITIONING E.A.-1 PLANS
83-M-3.2 AIR CONDITIONING E.A.-1 ELEVATION
83-M-3.3 AIR CONDITIONING E.A.-1 FAN SUPPORT BRACKET
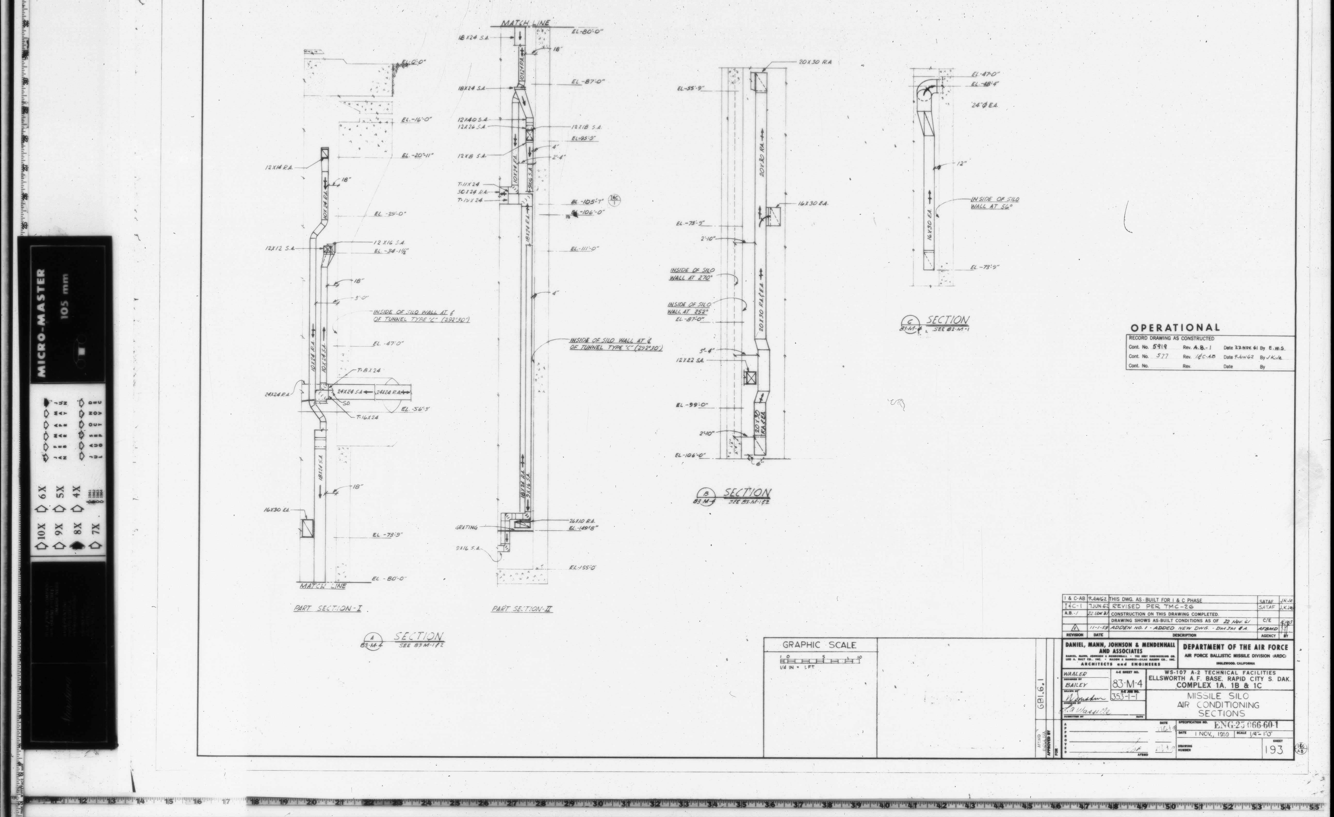
83-M-4 AIR CONDITIONING SECTIONS

Missile Silo - Plumbing drawings (28)

Drawing Number Description
83-P-1 P.L.S. PIPING PLAN "E - E"
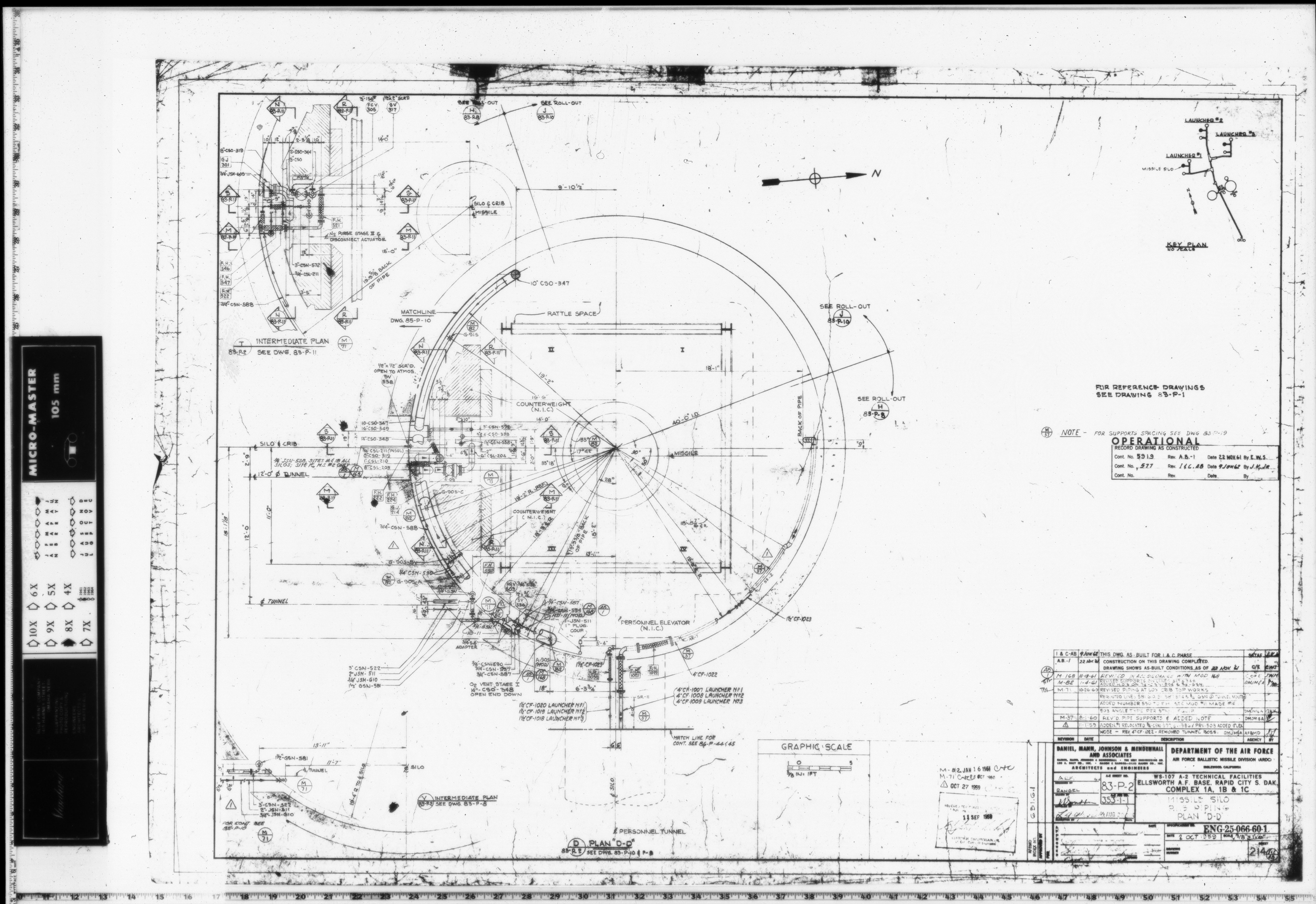
83-P-2 P.L.S. PIPING PLAN "D - D"
83-P-3 P.L.S. PIPING PLAN "C - C"
83-P-4 P.L.S. PIPING PLAN "B - B"
83-P-5 P.L.S. PIPING PLAN "A - A"
83-P-6 MISSING
83-P-7 P.L.S. PIPING SECTIONS SHT.#2
83-P-8 P.L.S. PIPING SECTION SHT.#3
83-P-9 P.L.S. PIPING SECTION SHT.#4
83-P-10 P.L.S. PIPING SECTIONS SHT.#5
83-P-11 P.L.S. PIPING SECTIONS SHT.#6
83-P-12 MISSING
83-P-13 MISSING
83-P-14 MISSING
83-P-15 MISSING
83-P-16 MISSING
83-P-17 MISSING
83-P-18 MISSING
83-P-19 MISSING
83-P-20 MISSING
83-P-21 LOX PIPING CRIB LOWER ELEVATIONS
83-P-22 LOX PIPING CRIB UPPER ELEVATIONS
83-P-23 LOX PIPING CRIB PLAN SHEET I
83-P-24 LOX PIPING CRIB PLAN SHEET II
83-P-25 LOX PIPING CRIB PLAN SHEET III
83-P-26 LOX PIPING CRIB DETAILS SHEET I
83-P-27 LOX PIPING CRIB DETAILS SHEET II
83-P-28 P.L.S. PIPE SUPPORT DETAILS SHEET #1
83-P-29 P.L.S. PIPE SUPPORT DETAILS SHEET #2
83-P-30 P.L.S. PIPE SUPPORT DETAILS SHEET #3
83-P-31 P.L.S. PIPE SUPPORT DETAILS SHEET #4
83-P-32 P.L.S. PIPE SUPPORT DETAILS SHEET #5
83-P-33 P.L.S. PIPE SUPPORT DETAILS SHEET #6
83-P-34 P.L.S. PIPE SUPPORT DETAILS SHEET #7
83-P-35 P.L.S. PIPE SUPPORT DETAILS SHEET #8
83-P-36 P.L.S. PIPE SUPPORT DETAILS SHEET #9
83-P-37 P.L.S. PIPE SUPPORT DETAILS SHEET #10
83-P-38 P.L.S. PIPE SUPPORT DETAILS SHEET #11

Missile Silo - Structural drawings (4)

Drawing Number Description
83-S-1 MISSING
83-S-2 FOUNDATION PLAN & DETAIL
83-S-3 WALL SECTIONS AND DETAILS
83-S-4 MISSING
83-S-5 MISSING
83-S-6 DOUBLE PIVOT DOOR PLAN
83-S-7 DOUBLE PIVOT DOOR SECTIONS